| Kat | Soba | Kupaona | Površina m2 | Neto korisna površina m2 |
| Prizemlje | 2 | 1 | 67.80 | 63.40 |
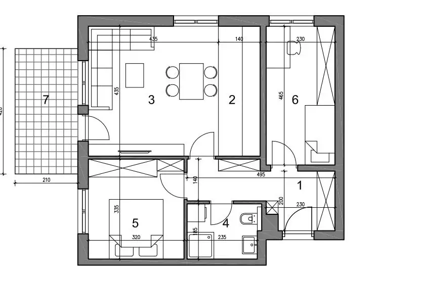
| Oznaka prostorije | Prostorija | Površina m2 | Koeficijent | Neto korisna površina m2 |
|---|---|---|---|---|
| 1 | HODNIK | 8,00 | 1 | 8,00 |
| 2 | KUHINJA | 6,10 | 1 | 6,10 |
| 3 | DNEVNI BORAVAK + BLAGOVAONICA | 19,00 | 1 | 19,00 |
| 4 | KUPAONICA | 4,50 | 1 | 4,50 |
| 5 | SOBA | 10,70 | 1 | 10,70 |
| 6 | SOBA | 10,70 | 1 | 10,70 |
| 7 | BALKON | 8,80 | 0,5 | 4,40 |



