Stan S1-1

Rezervirano
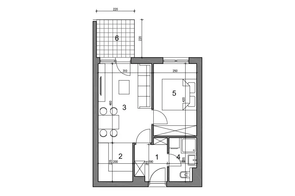
Kat Soba Kupaona Površina m2 Neto korisna površina m2
Kat 1 1 1 41.80 39.60

Oznaka prostorije Prostorija Površina m2 Koeficijent Neto korisna
površina m2
1 HODNIK 4,20 1 4,20
2 KUHINJA 4,50 1 4,50
3 DNEVNI BORAVAK + BLAGOVAONICA 14,30 1 14,30
4 KUPAONICA 3,90 1 3,90
5 SOBA 10,50 1 10,50
6 BALKON 4,40 0,5 2,20
Dugave Dom Dugave Dom