| Kat | Soba | Kupaona | Površina m2 | Neto korisna površina m2 |
| Kat 1 | 1 | 1 | 41.80 | 39.60 |
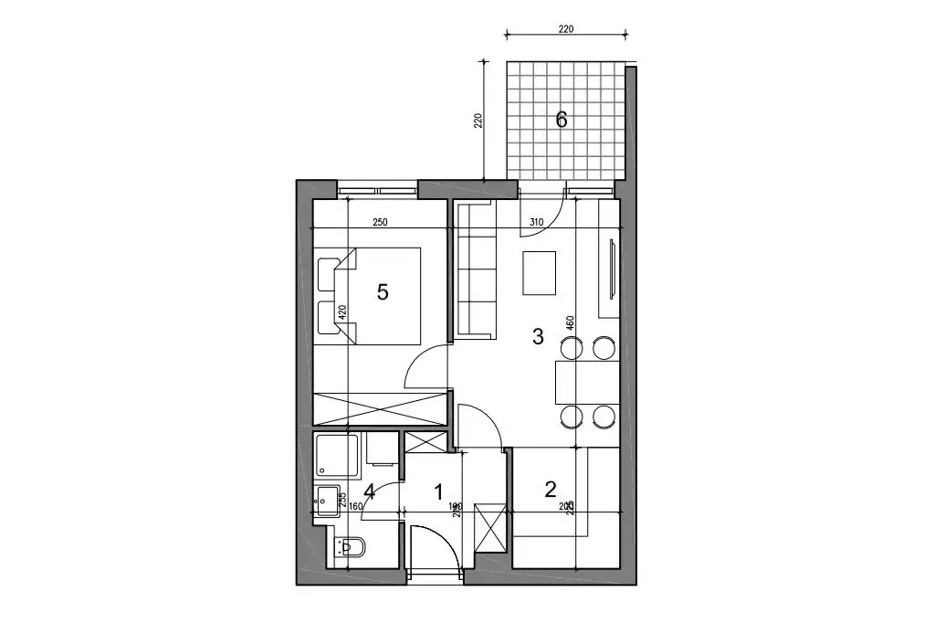
| Oznaka prostorije | Prostorija | Površina m2 | Koeficijent | Neto korisna površina m2 |
|---|---|---|---|---|
| 1 | HODNIK | 4,20 | 1 | 4,20 |
| 2 | KUHINJA | 4,50 | 1 | 4,50 |
| 3 | DNEVNI BORAVAK + BLAGOVAONICA | 14,30 | 1 | 14,30 |
| 4 | KUPAONICA | 3,90 | 1 | 3,90 |
| 5 | SOBA | 10,50 | 1 | 10,50 |
| 6 | BALKON | 4,40 | 0,5 | 2,20 |



