Stan S1-3

Prodano
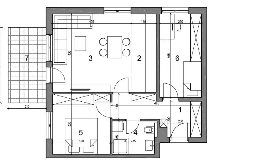
Kat Soba Kupaona Površina m2 Neto korisna površina m2
Kat 1 2 1 67.80 63.40

Oznaka prostorije Prostorija Površina m2 Koeficijent Neto korisna
površina m2
1 HODNIK 8,00 1 8,00
2 KUHINJA 6,10 1 6,10
3 DNEVNI BORAVAK + BLAGOVAONICA 19,00 1 19,00
4 KUPAONICA 4,50 1 4,50
5 SOBA 10,70 1 10,70
6 SOBA 10,70 1 10,70
7 BALKON 8,80 0,5 4,40
Dugave Dom Dugave Dom