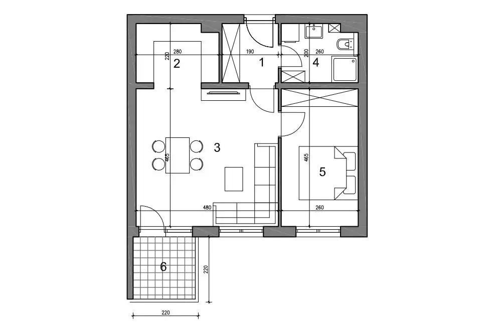
Stan S1-6

Raspoloživo
Kat Soba Kupaona Površina m2 Neto korisna površina m2
Kat 1 1 1 53.10 50.90

Oznaka prostorije Prostorija Površina m2 Koeficijent Neto korisna
površina m2
1 HODNIK 3,80 1 3,80
2 KUHINJA 5,40 1 5,40
3 DNEVNI BORAVAK + BLAGOVAONICA 22,40 1 22,40
4 KUPAONICA 5,00 1 5,00
5 SOBA 12,10 1 12,10
6 BALKON 4,40 0,5 2,20
Dugave Dom Dugave Dom