| Kat | Soba | Kupaona | Površina m2 | Neto korisna površina m2 |
| Kat 2 | 1 | 1 | 53.10 | 50.90 |
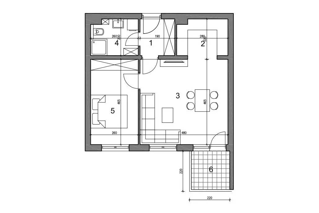
| Oznaka prostorije | Prostorija | Površina m2 | Koeficijent | Neto korisna površina m2 |
|---|---|---|---|---|
| 1 | HODNIK | 3,80 | 1 | 3,80 |
| 2 | KUHINJA | 5,40 | 1 | 5,40 |
| 3 | DNEVNI BORAVAK + BLAGOVAONICA | 22,40 | 1 | 22,40 |
| 4 | KUPAONICA | 5,00 | 1 | 5,00 |
| 5 | SOBA | 12,10 | 1 | 12,10 |
| 6 | BALKON | 4,40 | 0,5 | 2,20 |



