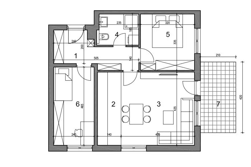
| Kat | Soba | Kupaona | Površina m2 | Neto korisna površina m2 | 
| Kat 2 | 2 | 1 | 68.50 | 64.10 | 
| Oznaka prostorije | Prostorija | Površina m2 | Koeficijent | Neto korisna površina m2 | 
|---|---|---|---|---|
| 1 | HODNIK | 8,20 | 1 | 8,20 | 
| 2 | KUHINJA | 6,10 | 1 | 6,10 | 
| 3 | DNEVNI BORAVAK + BLAGOVAONICA | 19,00 | 1 | 19,00 | 
| 4 | KUPAONICA | 4,50 | 1 | 4,50 | 
| 5 | SOBA | 10,70 | 1 | 10,70 | 
| 6 | SOBA | 11,20 | 1 | 11,20 | 
| 7 | BALKON | 8,80 | 0,5 | 4,40 | 



