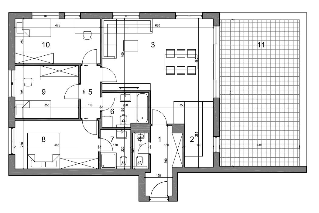
| Kat | Soba | Kupaona | Površina m2 | Neto korisna površina m2 |
| Kat 3 | 3 | 2 | 130.90 | 99.85 |
| Oznaka prostorije | Prostorija | Površina m2 | Koeficijent | Neto korisna površina m2 |
|---|---|---|---|---|
| 1 | HODNIK | 6,10 | 1 | 6,10 |
| 2 | KUHINJA | 6,70 | 1 | 6,70 |
| 3 | DNEVNI BORAVAK + BLAGOVAONICA | 28,20 | 1 | 28,20 |
| 4 | WC | 1,70 | 1 | 1,70 |
| 5 | HODNIK | 3,50 | 1 | 3,50 |
| 6 | KUPAONICA | 4,50 | 1 | 4,50 |
| 7 | KUPAONICA | 4,00 | 1 | 4,00 |
| 8 | SOBA | 12,80 | 1 | 12,80 |
| 9 | SOBA | 10,20 | 1 | 10,20 |
| 10 | SOBA | 11,80 | 1 | 11,80 |
| 11 | OTVORENA TERASA | 41,40 | 0,25 | 10,35 |



