Stan S3-5

Prodano
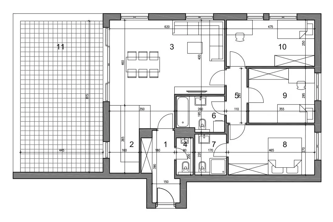
Kat Soba Kupaona Površina m2 Neto korisna površina m2
Kat 3 3 2 130.90 99.85

Oznaka prostorije Prostorija Površina m2 Koeficijent Neto korisna
površina m2
1 HODNIK 6,10 1 6,10
2 KUHINJA 6,70 1 6,70
3 DNEVNI BORAVAK + BLAGOVAONICA 28,20 1 28,20
4 WC 1,70 1 1,70
5 HODNIK 3,50 1 3,50
6 KUPAONICA 4,50 1 4,50
7 KUPAONICA 4,00 1 4,00
8 SOBA 12,80 1 12,80
9 SOBA 10,20 1 10,20
10 SOBA 11,80 1 11,80
11 OTVORENA TERASA 41,40 0,25 10,35
Dugave Dom Dugave Dom