| Kat | Soba | Kupaona | Površina m2 | Neto korisna površina m2 |
| Kat 3 | 2 | 1 | 89.10 | 69.75 |
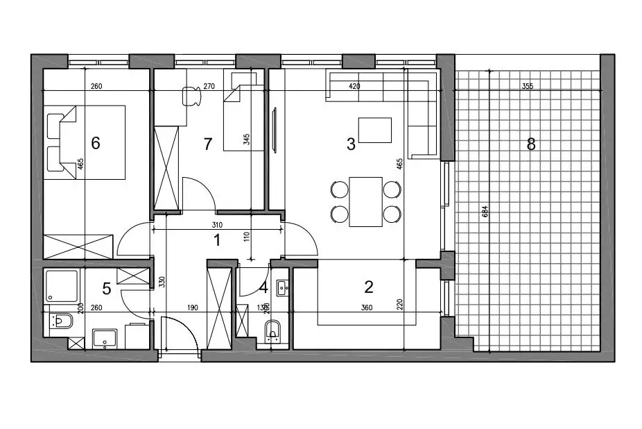
| Oznaka prostorije | Prostorija | Površina m2 | Koeficijent | Neto korisna površina m2 |
|---|---|---|---|---|
| 1 | HODNIK | 7,50 | 1 | 7,50 |
| 2 | KUHINJA | 7,70 | 1 | 7,70 |
| 3 | DNEVNI BORAVAK + BLAGOVAONICA | 19,20 | 1 | 19,20 |
| 4 | WC | 2,40 | 1 | 2,40 |
| 5 | KUPAONICA | 5,00 | 1 | 5,00 |
| 6 | SOBA | 12,10 | 1 | 12,10 |
| 7 | SOBA | 9,40 | 1 | 9,40 |
| 8 | OTVORENA TERASA | 25,80 | 0,25 | 6,45 |



