Stan S3-6

Prodano
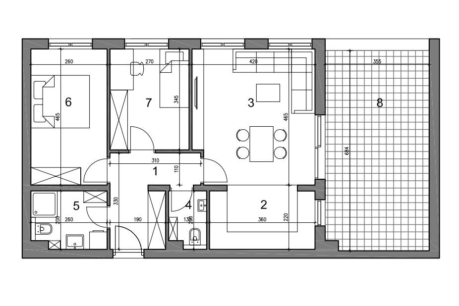
Kat Soba Kupaona Površina m2 Neto korisna površina m2
Kat 3 2 1 89.10 69.75

Oznaka prostorije Prostorija Površina m2 Koeficijent Neto korisna
površina m2
1 HODNIK 7,50 1 7,50
2 KUHINJA 7,70 1 7,70
3 DNEVNI BORAVAK + BLAGOVAONICA 19,20 1 19,20
4 WC 2,40 1 2,40
5 KUPAONICA 5,00 1 5,00
6 SOBA 12,10 1 12,10
7 SOBA 9,40 1 9,40
8 OTVORENA TERASA 25,80 0,25 6,45
Dugave Dom Dugave Dom